GENERATORN
Plats: Vallastaden, Linköping
Typ: Flerbostadshus + Gemensamhetshus, Felleshuset
År: Vinst markanvisningstävling 2019, färdigställt 2023
Area: 4650 M2 BTA
Byggherre: Spridd
Generalkonsult: Spridd
Arkitekter: Spridd, Septembre, Secretary
Arkitektteam Spridd: Ola Broms-Wessel, ansvarig. Kim Bjarke, handläggare. Johan Löwstett, bitr. handläggare. Nils Sandström, medv. Eva Strocholcova, medv. Tanima Sonar, medv. Dajana Hercigonja Pudak, medv.
Entrepenör: Lindstams Bygg
Framtida ägare: K2A
Miljöklassificering: Plusenergihus, Svanenmärkt
Fotograf: Johan Dehlin
Vinnare Studentbostadspriset 2023
Generatorn är ett flerbostadshus i Linköping som har ritats av tre arkitektkontor - Spridd, Septembre och Secretary.
Arkitektkontoret Spridd vann hösten 2019 markanvisningstävlingen för Generatorn, ett flerbostadshus beläget i Vallastaden, en ny stadsdel väster om Linköpings innerstad.
För tävlingen bjöd Spridd, som även är byggherre för projektet, in det Paris-baserade kontoret Septembre och det nystartade kontoret Secretary till ett designsamarbete.
Projektet utvecklades tidigt genom en utforskande och kreativ process med gemensamt ritningsarbete och workshops samt intervjuer med studenter som utmanade idén om det individuella arkitektoniska författarskapet.
Tillsammans har vi arbetat med att skapa en gemensam och inkluderande arkitektur med en sammanhängande gestaltning som kontrast till områdets brokiga karaktär. Genom projektets varierande program och generösa gemensamhetsytor visar Generatorn på möjlighet till möten mellan olika generationer i linje med stadsplanens intentioner. Här finns ett socialt liv även utanför lägenhetens väggar.
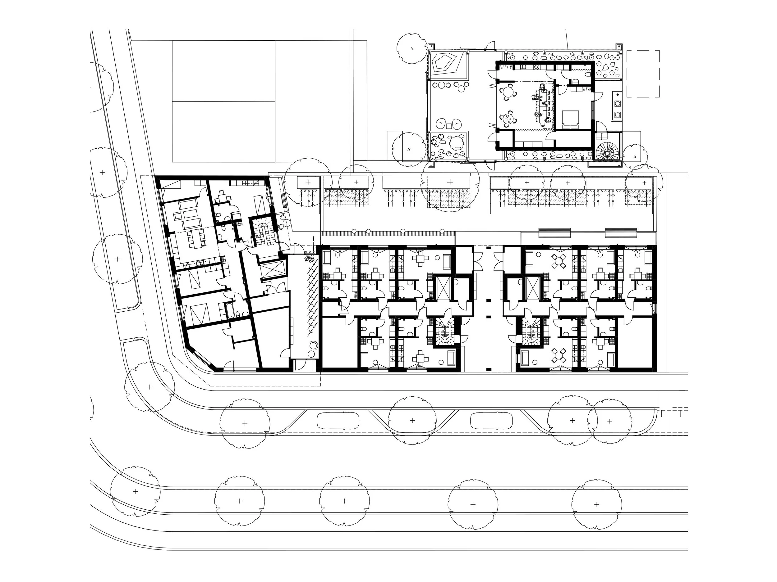
Generatorn består av tre fastigheter som kombinerar studentboende och trygghetsboende. I trygghetsboendet finns tillgång till service, måltider och gemensamhetslokaler för samvaro och rekreation. Trygghetsboendet är också en Kooperativ hyresrätt som ger dess medlemmar möjlighet till att aktivt påverka driften av fastigheten.
Husen har 7 våningsplan där den översta, vindsvåningen, består av vinterträdgård, förrådsytor och gemensamhetsytor längs dess helglasade öppningsbara fasader. Byggnaderna har totalt 112 lägenheter. De välutrustade lägenheterna i trygghetsboendet har försetts med generösa balkonger som sträcker sig längs hela den södra fasaden. I de ljusa studentbostäderna erbjuds en variation av lägenhetstyper, från kompakt, till loft och alkov.
Byggnaden har en bärande stomme av KL-trä helt utan betong vilket kraftigt reducerar husets koldioxidavtryck. Projektet byggs som ett plusenergihus, ett hus som producerar mer energi än vad det gör av med, något som är unikt för svenskt byggande. Detta är möjligt genom högpresterande solpaneler och innovativa energilösningar så som ventilationsaggregat med individuell styrning i varje lägenhet. Utöver de energisparande lösningarna uppförs huset som en Svanenmärkt byggnad vilket säkerställer en hållbar byggprocess.
Bostadshuset Generatorn har utöver sina egna privata fastigheter också tillgång till en gemensamhetsanläggning som delas med de andra fastigheterna i kvarteret. Det så kallade ”Felleshuset” är en gemensam mötespunkt i kvarteret och innehåller övernattningslägenhet, samlingslokal, kök, toaletter samt förråd. Felleshuset har en uppvärmd byggnad inne i ett omslutande växthusskal. Inom växthusdelen har det anordnats plats för odling, sittgrupp och lek i intim och trygg miljö.
